Home
Projects
News
Events
Contact Us
CeTeau Pumps








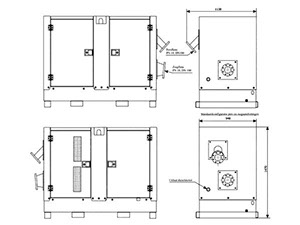
Download BrochureWe have developed a special vacuum pump for the vacuum consolidation system. This pump is well-suited to our vacuum consolidation or well point pumping. For Asia, a special tropical version with additional cooling has been built. The pump can apply a maximum under-pressure of 99 kPa. This high vacuum is achieved by first using an electronically controlled separating unit to separate the water and air.
CeTeau segmental reinforced blocks wall, Economical, Flexible...
CeTeau cell provides excellent protection for slopes against...
The use of geotextile manufactured into a containment product has ...
Geogrids have been developed to overcome the bearing limits of ...
Geosynthetic clay liners are high - performance environmental liners ...
Geotextiles have secured a valued and permanent place among ...
Geomembranes are widely used for containment of liquids, solids ...
CeTeau PVC sheet piling systems are the new standard with many ...
For over a century, triple twist hexagonal mesh has been used ...
Silt Protector is a flexible membrane product that has ...
The use of CeTeau composite strip drains for lateral drainage ...
We have developed a special vacuum pump for the vacuum ...
CeTeau timber wall retention is a structurally engineered walling ...
The innovative CeTeau Vacuo is designed to accelerate the ...
Prefabricated Vertical Drains (PVD), also called Wick Drains, are ...
In order to be able to offer the full spectrum of soil improvement ...
Waterstop-RX is a flexible strip-concrete construction-joint ...